5 Room Terrace house Near Heian Jingu Shrine and Okazaki Park
newly listed
It's 14 minutes walk from Subway Tozai line Keage station.
- Price
20800000YEN
- for Sale Used house
- Plan
5 DK
|
|
|
|
Exchange rates:www.exchange-rates.org
|
location property name |
Kyoto Sakyo-ku Okazaki Tenno-cho OKAZAKI TENNOCHO TERRACE HOUSE |
public transport |
Subway Tozai Line Keage station walk 14 minutes Keihan Main Line Jingu-marutamachi station walk 21 minutes |
| year built |
February 1969 |
condition |
Used |
| building size |
49.74 m² |
measurement method |
|
| balcony size |
m² |
direction of balcony |
East |
number of building story |
2 - story(s)
|
target floors |
1-2 Floor |
plot numbers or target floors |
1 plot |
building or unit numbers |
1 building |
| building structure |
wooden |
| floor layout |
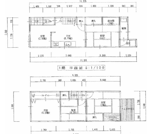
1F: DK 5.77 jo(x1.65㎡) 1F: Japanese‐style room 6 jo(x1.65㎡ 1F: Western-style room 3.96 jo(x1.65㎡ 2F: Japanese‐style room 6 jo(x1.65㎡ 2F: Western-style room 5.25 jo(x1.65㎡ 2F: Japanese‐style room 4.5 jo(x1.65㎡
|
| parking garage |
|
transactions |
Mediation |
| deliver of property |
arrangement |
state |
vacancy |
classification of land category |
Housing |
zoning |
Category1 medium-to-high-rise exclusive residential |
| city planning |
Urbanization area |
topography |
Flat |
| land size |
47.80m² |
measurement of land size |
|
| private road |
7.28m² |
| plot ratio |
60% |
building coverage ratio |
160% |
| land title |
ownership |
connecting road state |
on one side |
connecting road direction |
West |
connecting road tangent |
m |
connecting road type |
private road |
connecting road width |
3.8m |
position designation road |
position designation road |
| area environment |
Kinrin elementary school
Okazaki junior highschool |
| facility and condition |
|
| URL |
https://maps.app.goo.gl/Xa6LMHKsyau5Ue5n8 |
| property number |
0114112026 |
| our company possess |
|
status |
Sale |
This used terrace house is located in the Okazaki area, where cultural facilities such as Heian Shrine, Okazaki Park, the zoo, and art museums are concentrated.
The surrounding area is a quiet residential neighborhood offering a pleasant living environment.
Additionally, supermarkets, elementary schools, and parks are nearby, providing high convenience for daily life.
Current condition is prior to publication contents in case of differ between each information.